Logo Retina Logo
  • Home Plans
  • Services
    • Custom Plans
    • Architectural Rendering
    • Accessible Living Design
  • Info
  • Blog
  • About
  • Contact

Shady Oaks

A modern farmhouse design with an open-concept first floor
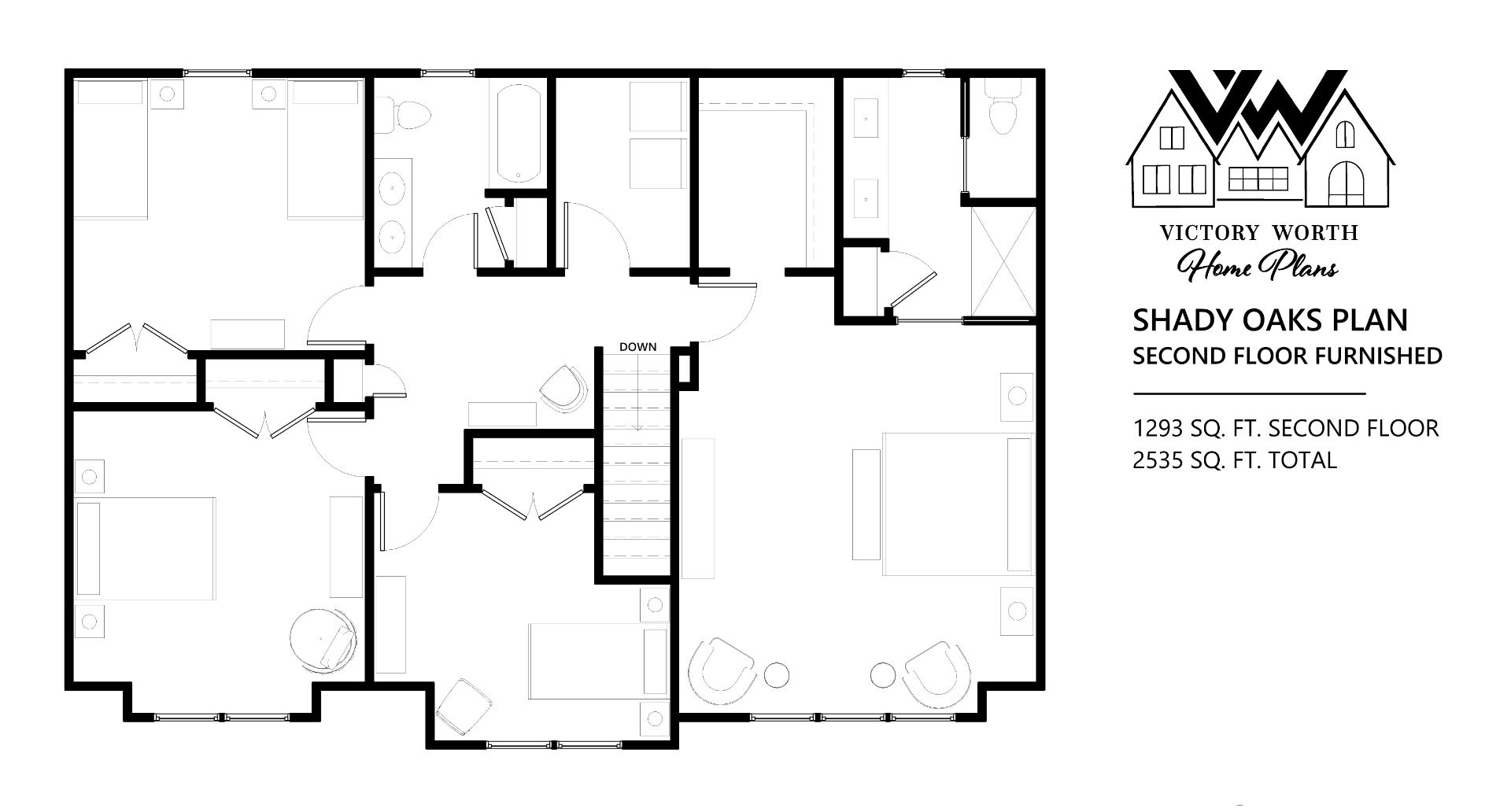
Living Square Feet 2,535
Bedrooms 4
Baths 2.5
Garages 2
Foundation Slab on grade
Floors 2
First Floor Bedroom No
Laundry Second floor

The Shady Oaks Plan embodies a modern farmhouse feel with a large, interior, open-layout living space that blends perfectly with a more traditional dining space. Designed with family and convenience in mind, the Shady Oaks Plan provides spaces for all.

The Shady Oaks Plan kitchen provides ample storage as well as seating. With the use of sliding barn doors, the Dining Room offers privacy from the kitchen space if desired, especially useful when hosting guests and desiring to keep the cooking in a separate space. Scenic window seating brings comfort to the Dinette area. In addition to the Master Bedroom, the second floor offers three bedrooms with a shared bathroom and comfortably fits many. The expansive Master Bedroom includes its own bathroom for privacy. To add convenience, the laundry is located on the second floor so that laundry baskets do not have to travel far from the bedrooms. The spacious hallway loft between the bedrooms can be used for various desired purposes and could fit a desk or bookshelf and chair.

Shady Oaks First Floor Plan Rooms Labeled with Garage
Shady Oaks First Floor Plan Rooms Labeled with Garage Lightbox Plus
 Shady Oaks First Floor Plan Furnished with Garage
Shady Oaks First Floor Plan Furnished with Garage Lightbox Plus
 Shady Oaks Second Floor Plan Rooms Labeled
Shady Oaks Second Floor Plan Rooms Labeled Lightbox Plus
 Shady Oaks Second Floor Plan Furnished
Shady Oaks Second Floor Plan Furnished Lightbox Plus
Shady Oaks Front Exterior Photo Main
Shady Oaks Front Exterior Photo Main Lightbox Plus
Shady Oaks Kitchen
Shady Oaks Kitchen Lightbox Plus
  Shady Oaks Living,Kitchen Photo   thumb
Shady Oaks Living,Kitchen Photo Lightbox Plus
 Shady Oaks Front Exterior Close Up   thumb
Shady Oaks Front Exterior Close Up Lightbox Plus
 Shady Oaks Built In Bench Feature   thumb
Shady Oaks Built In Bench Feature Lightbox Plus
 Shady Oaks Stair Photo   thumb
Shady Oaks Stair Photo Lightbox Plus
 Shady Oaks Kitchen Design 2   thumb
Shady Oaks Kitchen Design 2 Lightbox Plus
  Shady Oaks Master Bathroom
Shady Oaks Master Bathroom Lightbox Plus
 Shady Oaks Dining Room   thumb
Shady Oaks Dining Room Lightbox Plus
 Shady Oaks Kitchen Design   thumb
Shady Oaks Kitchen Design Lightbox Plus

 

 

© 2025 Victory Worth Home Plans, LLC

  • Follow us on Instagram
  • Find us on Facebook